Es ist noch eine Wohnung verfügbar!

Zum Warburger Tor 16, 34414 Warburg-Ossendorf

 

Ab dem 01.Juli 2026 stehen in einem nach Kernsanierung

neu gestalteten Haus 10 lichtdurchflute Mietwohnungen

á 52 - 77 m² zur Verfügung.

Das Mietshaus wird energieeffizient umgebaut.

Die Wohnungen verfügen über Fußbodenheizung.

In jeder Wohnung befindet sich ein eigener HWR-Raum.

Ein eigener Abstellraum im Keller sowie ein PKW-Stellplatz

sind inklusive. Haustiere sind nicht erlaubt.

 

Fertigstellung: 01.Juli 2026

 

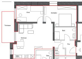
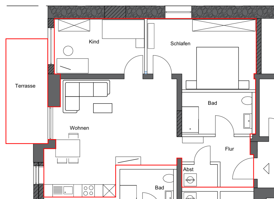
Wohnung 1

Etage: EG

Größe: 77 m²

Zimmer: Küche / Wohnraum,

Schlafzimmer, Kinderzimmer,

Bad, HWR, Terrasse, Kellerraum

-Wohnung vergeben-

Wohnung 2

Etage: EG

Größe: 72 m²

Zimmer: Küche / Wohnraum,

Schlafzimmer, Kinderzimmer,

Bad, HWR, Terrasse, Kellerraum

-Wohnung vergeben-

 

Wohnung 3                                                     

Etage: EG

Größe: 74 m²

Zimmer: Küche / Wohnraum,

Schlafzimmer, Kinderzimmer,

Bad, HWR, Kellerraum

-Wohnung vergeben-

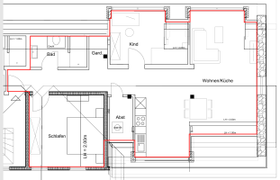
Wohnung 4

Etage: 1.Etage

Größe: 74 m²

Zimmer: Küche / Wohnraum,

Schlafzimmer, Kinderzimmer,

Bad, HWR, Balkon, Kellerraum

-Wohnung vergeben-

 

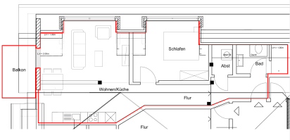
Wohnung 5

Etage: 1.Etage

Größe: 76 m²

Zimmer: Küche / Wohnraum,

Schlafzimmer, Kinderzimmer,

Bad, HWR, Balkon, Kellerraum

-Wohnung vergeben-

 

Wohnung 6

Etage: 1.Etage

Größe: 52 m²

Zimmer: Küche / Wohnraum,

Schlafzimmer, Bad, HWR, Kellerraum

-Wohnung vergeben-

 

Wohnung 7

Etage: 1.Etage

Größe: 57 m²

Zimmer: Küche / Wohnraum,

Schlafzimmer, Bad, HWR, Kellerraum

-Wohnung vergeben-

 

Wohnung 8                                                          

Etage: DG

Größe: 62 m²

Zimmer: Küche / Wohnraum,

Schlafzimmer, Bad, HWR, Kellerraum

-Wohnung vergeben-

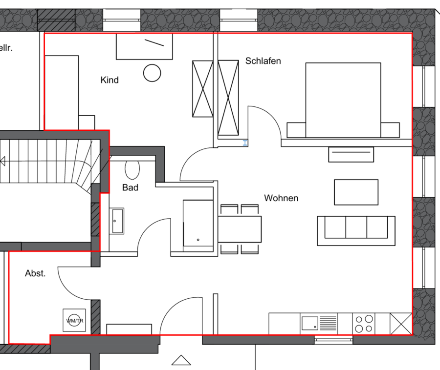
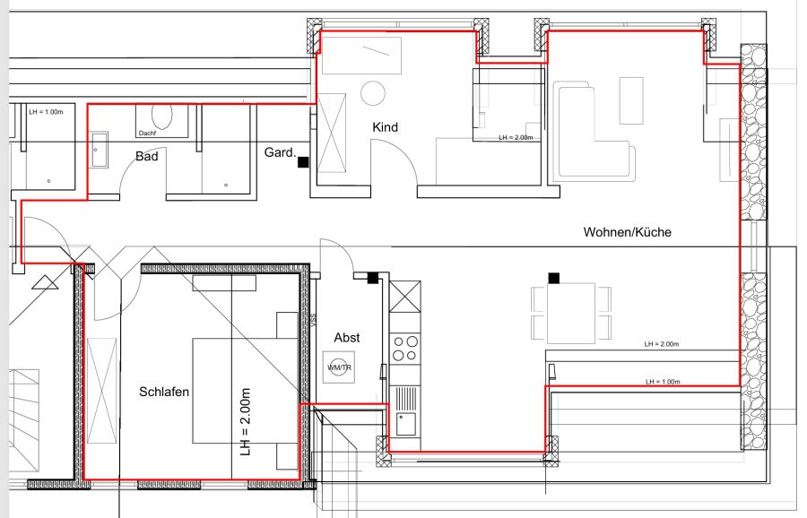
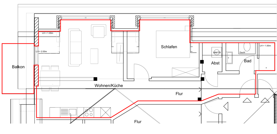
Wohnung 9

Etage: DG

Größe: 70 m²

Zimmer: Küche / Wohnraum,

Schlafzimmer, Bad, HWR, Balkon, Kellerraum

-Wohnung vergeben-

 

Wohnung 10                                                          -Wohnung verfügbar-

Etage: DG

Größe: 90 m²

Zimmer: Küche / Wohnraum, Schlafzimmer,

Kinderzimmer, Bad, HWR, Kellerraum

Sie interessieren sich für unsere Wohnungen? Rufen Sie uns an und sichern Sie sich Ihr neues Zuhause!

Druckversion | Sitemap
© Warburger Wohnungsbau GmbH